2 maisons unifamiliales jumelées

Description du projet :

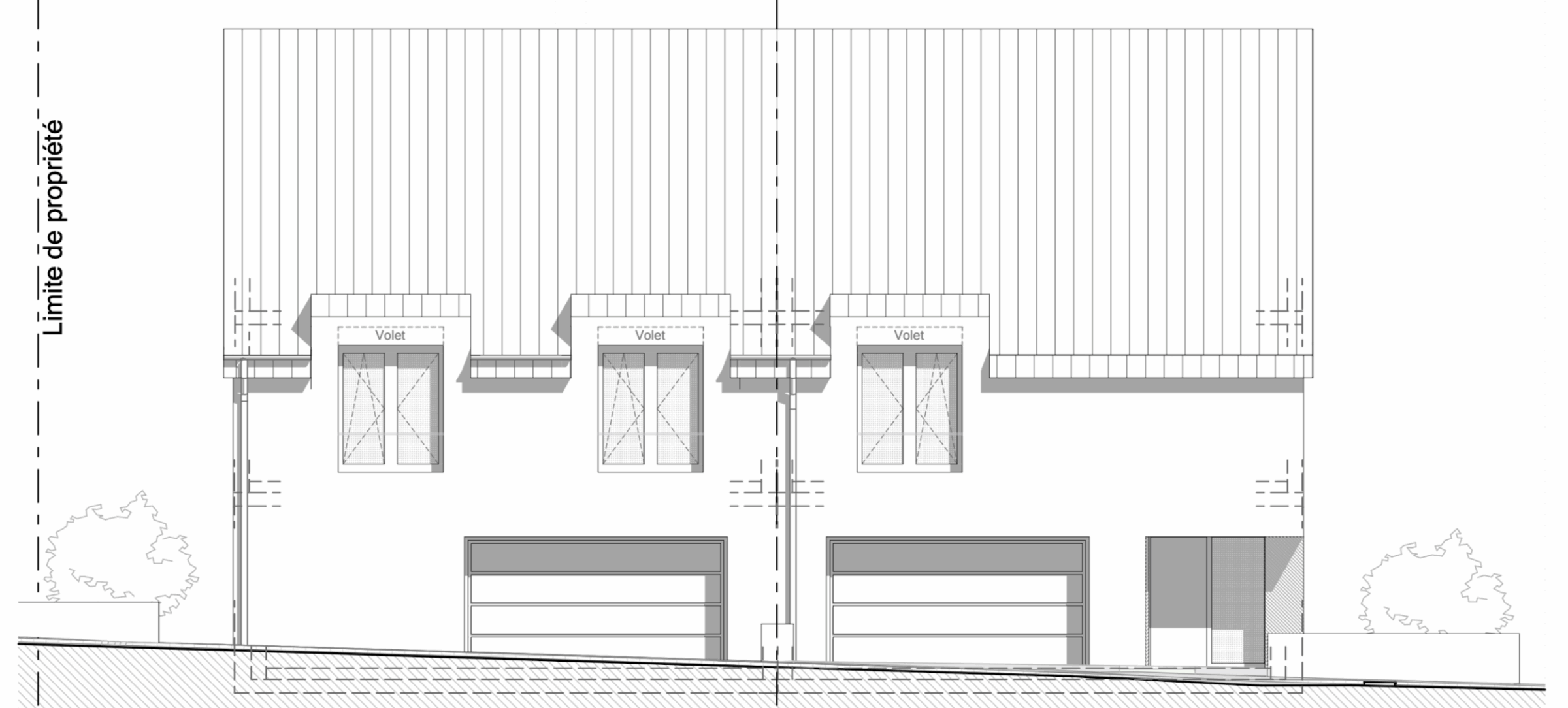
2 maisons unifamiliales Adresse : 20, rue Wénkelhiel, L‑5680 Dalheim

Nous vous présentons deux maisons unifamiliales contemporaines, pensées pour offrir un confort familial raffiné, une forte performance énergétique et une qualité architecturale sobre et élégante.

Situation et parcelles

  • Deux parcelles privatives, idéalement situées: Lot 1 ≈ 7,32 ares ; Lot 2 ≈ 6,30 ares.
  • Implantation soignée avec terrasses et jardins à l’arrière orientés sud / sud‑est, garantissant un ensoleillement optimal et des vues dégagées sur la campagne.

Ambiance et design

  • Architecture contemporaine aux lignes épurées, façades généreusement ouvrantes pour maximiser la lumière naturelle.
  • Intérieurs ouverts et fluides favorisant les échanges familiaux, espaces de vie lumineux donnant directement sur la terrasse et le jardin pour un art de vivre intérieur‑extérieur.

Confort et prestations

  • Garages intégrés, locaux techniques et buanderie pour un usage pratique au quotidien.
  • Matériaux et équipements de qualité, isolation performante, menuiseries modernes et systèmes techniques étudiés pour l’efficacité énergétique et le confort acoustique.
  • Combles prévus pour accueillir installations techniques et rangements.

Environnement

  • Cadre villageois calme et verdoyant de Dalheim, riche en patrimoine historique et en espaces de loisirs. Bon compromis entre qualité de vie rurale et accès aux commodités régionales.

Résumé Deux maisons élégantes et bien orientées sur des parcelles généreuses, offrant un cadre de vie chaleureux, lumineux et performant — parfait pour des familles recherchant confort, tranquillité et proximité des axes routières principales.

Capture d’écran 2026-03-06 à 15.18.49
Capture d’écran 2026-03-06 à 15.18.19